
academic
design projects
design exercises
study abroad
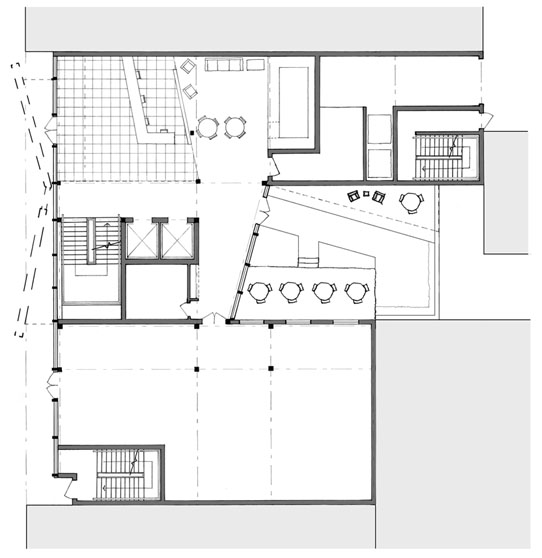
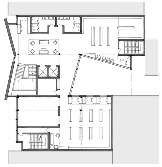
dc library
purpose:
Undergraduate design studio project exploring the tectonic design solutions for a library program within the limitations of a challenging Washington D.C. infill site.
design solution:
For the street facade I created a series of models and elevation studies to create a balanced composition of solid and void. Through an investigation of individual spaces with vignettes and physical models I developed furniture, lighting, and material finishes for each of the programed spaces.
